Project Name: Catherine McAuley Sports Hall
Address: Ashbourne Road, South Circular Road
Value: €1,200,000
Client: Board of Management Catherine McAuley School
Architect: Duggan Keogh & Associates
Completed: December 2004

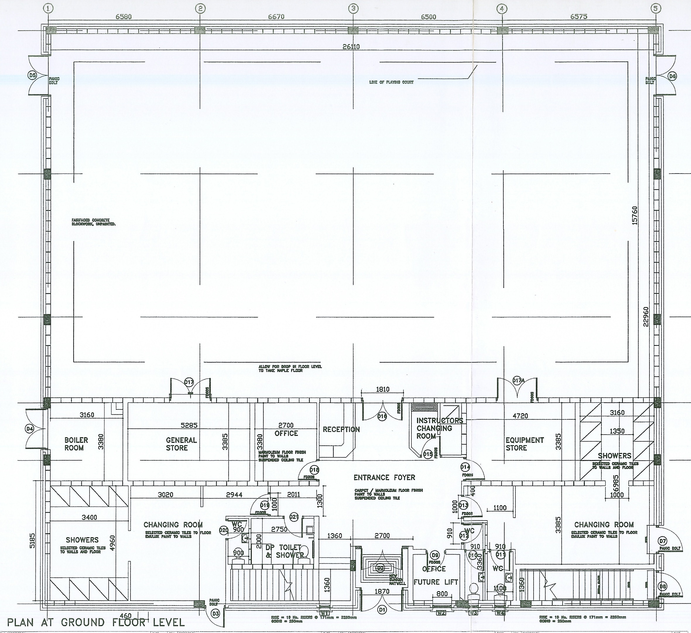
Description: Construction of new sports hall including indoor facilities and all weather pitch. The sports hall included changing rooms, meeting room and ancillary accommodation. The external works included an all weather pitch for pupils with learning difficulties together with a tarmacadam play space and car parking. Total floor area 900sqm.